Description
Living in a stately former bank building with international allure: Charming maisonette of approx. 112 m² on the first and second floors of the prestigious “Den Grooten Heer” complex. The apartment offers a generous, light-filled living room with balcony overlooking the landscaped courtyard, a modern (semi-)open kitchen, two bedrooms each with its own en-suite bathroom, and three toilets in total. Residents enjoy exceptional on-site facilities: an indoor heated swimming pool, sauna, gym, communal terraces, caretaker, and two lifts.
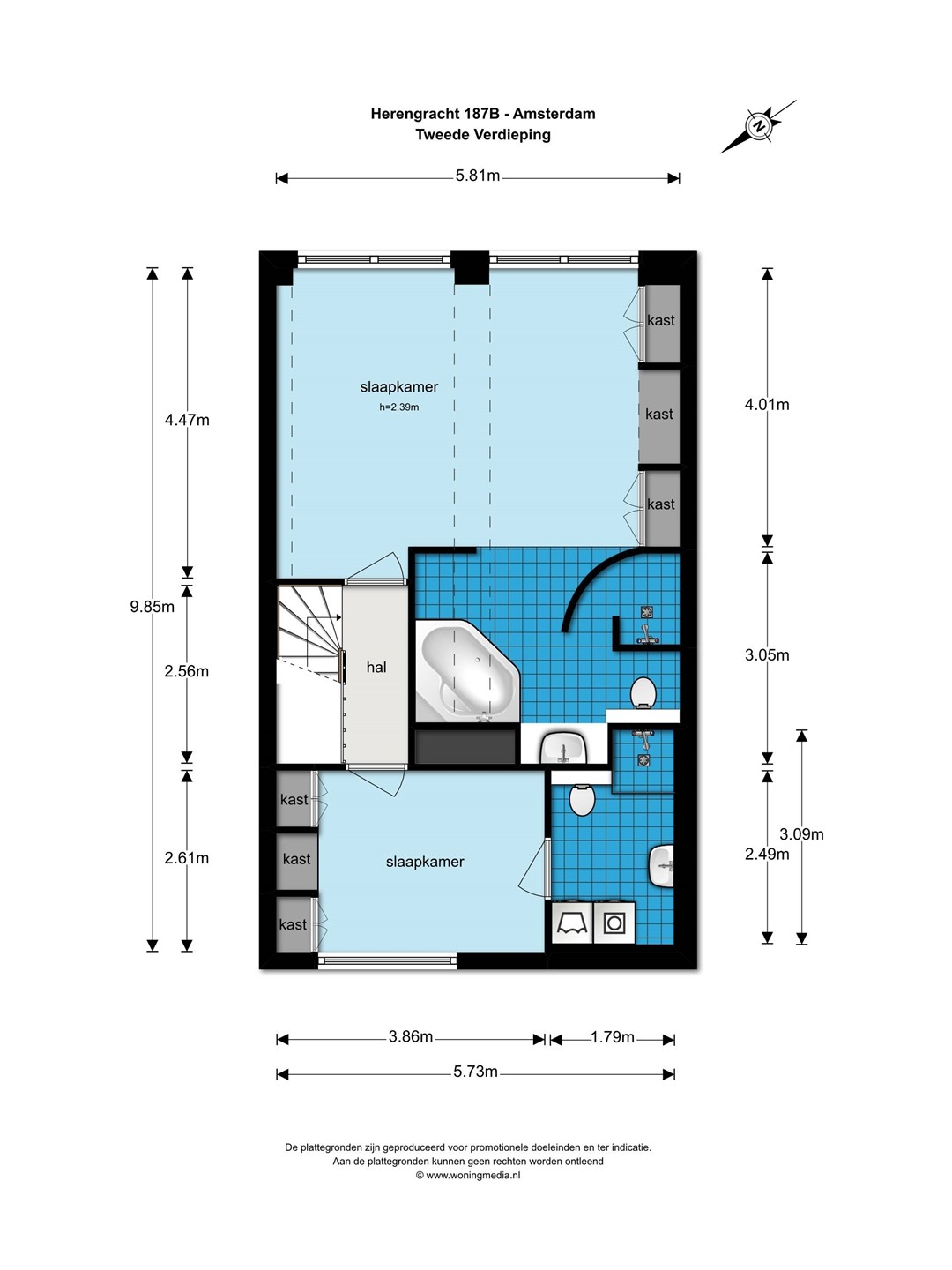
Layout:
First floor
Entrance via the monumental main entrance and glass atrium; private front door on the first floor. Hall with cloakroom and guest toilet. Wide living room with abundant natural light and French doors to the balcony facing the sheltered courtyard. (Semi-)open kitchen with built-in appliances.
Second floor
Landing. Primary bedroom with en-suite bathroom featuring a bathtub, walk-in shower, double washbasin, and toilet. Second bedroom also with en-suite bathroom, equipped with shower, washbasin, toilet, and washing machine connection.
Location & surroundings:
Situated on a quiet yet central stretch of the Herengracht, on the edge of the Jordaan, between Dam Square and the Westerkerk. "De negen straatjes" cafés, restaurants, and shops are all within easy walking distance. Thanks to the central location, daily amenities are conveniently reachable on foot.
Accessibility:
Public transport: various tram and bus lines and Amsterdam Central Station within walking distance; the metro is also easily accessible.
By car: the A10 ring road can be reached quickly via city routes. Parking via street (permit/paid) or nearby facilities.
Key features:
- Living area (NEN 2580): approx. 112 m²
- Located on freehold land
- Building-related outdoor space (balcony): approx. 2.1 m²
- 2 bedrooms, 2 en-suite bathrooms, 3 toilets
- Monumental complex with swimming pool, sauna, gym, communal terraces, caretaker, and two lifts