Description
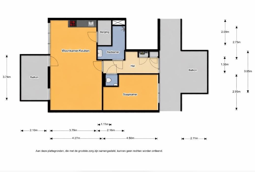
Beautiful brand new one bedroom apartment with a living area of approximately 61 m2, located in the popular Holland Park. The house is located on the 4th floor and in addition to the spacious balcony at the rear, it also has a balcony at the front! The apartment is listed unfurnished but it would be possible to rent it fully furnished for an additional cost.
.
The complex was finished in November 2020 therefore all is brand new and modern
.
The complex has a communal courtyard. Holland Park is located just 15 minutes from the heart of Amsterdam. In Holland Park you will get the ultimate Amsterdam canal feeling.
Holland Park has attractive canals, beautiful facades, cozy streets, green inner gardens and beautiful design apartments. Holland Park is a vibrant neighbourhood with good facilities, cozy restaurants and excellent connections. Partly because of its central location, Holland Park is very popular. You are in the center of Diemen or Amsterdam in no time. The railway station is within walking distance. good connection to all parts of amsterdam. within 15 to 20 minutes in South or to Amsterdam CS.
There is ample parking for rent (optional) and there are several roads in the area (A1, A2, A10).
In short, the accessibility is excellent!
Layout:
Communal closed entrance has access to several lifts (including a wheelchair lift, the complex is very accessible for disabled people) and a staircase.
The house is located on the 4th floor. The entrance of the house is in the hall, which provides access to: the spacious bedroom, the modern bathroom, which is fully tiled and equipped with a walk-in shower, sink and underfloor heating. In the hall is the meter cupboard, storage room with washing machine (connection for a dryer) and the floating toilet with wall closet and sink. The living room has large windows with 3 patio doors, one of which gives access to the spacious balcony. This means there is a lot of natural light. The living room also gives you access to the open kitchen. The modern kitchen is equipped with various built-in appliances such as: an induction hob, extractor, fridge, microwave and dishwasher.
In addition, the entire house has underfloor heating. An extra addition to the underfloor heating is that you can set it per room. The same goes for the ventilation.
Balcony:
The spacious balcony offers you the opportunity to enjoy the outdoors. With its location on the east you have a nice view over the residential area. Also, you have access to a balcony on the frontside of the apartment.
Storage:
You have access to your own storage room (with electricity) which is located on the ground. You also have access to several communal indoor bicycle sheds.